中柱上吊车钢斜梯

中柱上吊车钢斜梯
中柱上吊车钢斜梯基础参数
- 中柱上吊车钢斜梯材质:Q235B铁,不锈钢304,不锈钢201,不锈钢316,铝(5-7系)
- 中柱上吊车钢斜梯表面处理:默认热镀锌,可以喷漆颜色可选
- 中柱上吊车钢斜梯角度:59°/73°
- 中柱上吊车钢斜梯安装:组装式
中柱上吊车钢斜梯应用领域
中柱上吊车钢斜梯选用说明
上吊车钢斜梯由上吊车平台、中间平台、作业平台钢梯 和上端小梯组成本图集仅做组合示意图,不做选型编号,供项目设计参 考。项目设计时应根据工程需要另绘简图咱并做选型编号,其中斜梯的梯段可从本图集的作业平台钢梯部分选用按上吊车钢斜梯在厂房中的平面布置可分为柱中式、柱 边式及绕柱式三种形式柱中式和柱边式推荐采用倾角为 梁梁底标高小子等于59 。的钢斜梯。当吊车 11. 梁底标高大于OOm 时,可选择两个梯段;当吊车梁 11. OOm 时,可选择三个梯段 绕柱式推荐采用两种倾角( 7 。和 59° )的钢斜梯 用倾角 时,可选择两个梯段;当吊车梁梁底标高大于3° 钢斜梯。当吊车梁梁底标高小于等于 11. 00 11. 选择三个梯段OOrn 时,可 用倾角”。钢斜梯。当吊车梁梁底标高小于等于 时,可选择两个梯段;当吊车梁梁底标高大于7. 40m 7. 用多梯段40m 时,可采 上吊车驾驶室的上端小梯,本图集提供 1080mm540mm 810mm 三种高度,项目设计可根据吊车驾驶室的实际位置和 高度选择上端小梯或自行设计根据项目设计需要,设计人可在车间的山墙上设置吊车 检修钢平台钢斜梯的涂装要求为热镀锌,可选喷漆颜色可选
中柱上吊车钢斜梯编号及选用方法
钢斜梯的选用方法可见本图集 绍上吊车平台和中间平台的选用方法和编号作业平台钢梯。这里只介 上吊车钢斜梯平台选用/ 上吊车平台sp/1柱中式平面布置上吊车钢斜梯中间平台选用/ 中间平台ZP/绕柱式平面布置3

中柱上吊车钢斜梯简图

边柱上吊车钢斜梯简图

绕柱上吊车钢斜梯简图(73 。)

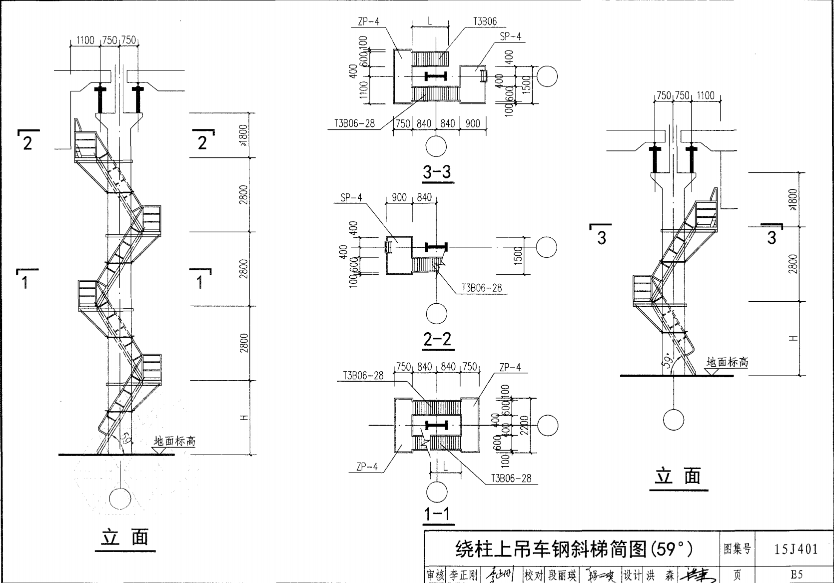
绕柱上吊车钢斜梯简图(59°)

上吊车平台SP-1.2详图

上吊车平台SP-3.4详图

上吊车中间平台ZP-1.2详图

上吊车中间平台ZP-3.4详图

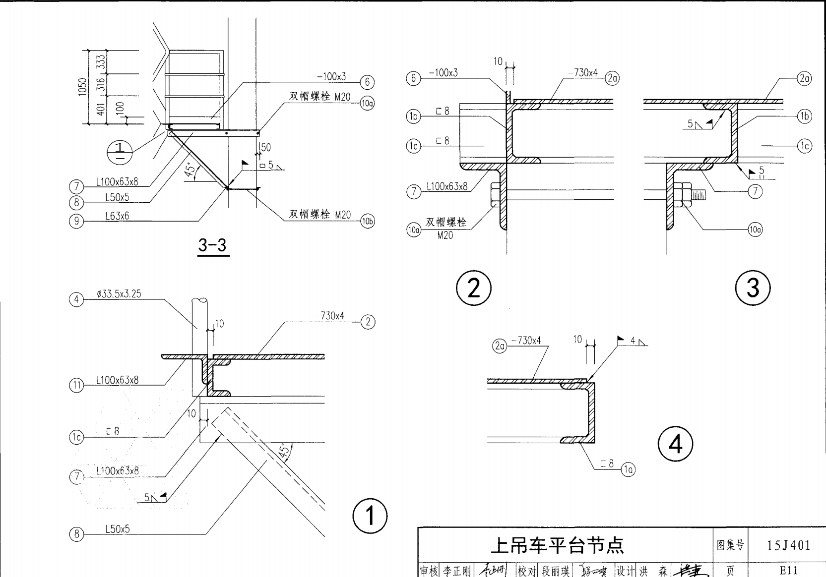
上吊车平台节点

上吊车平台节点

上吊车驾驶室小梯队A,B,C详图

上吊车平台SP-1 SP 材料表

上吊车中间平台ZP-1 ZP-4材料表

