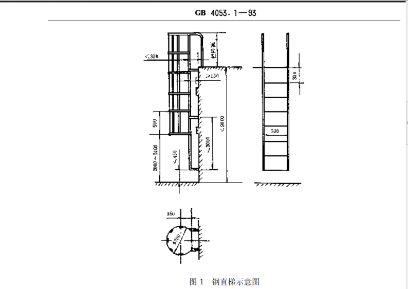
固定式钢直梯制作技术要求
一、执行标准:
1、固定式钢直梯安全技术条件:GB 4053.1-2009。
2、钢直梯全部采用焊接连接焊接要求应符合GBJ 205。
二、技术要求:
1、不锈钢直梯采用Ф32*4,材质316L的不锈钢钢材;宽度为500mm,即踏棍长度。
2、踏棍采用Ф32*4,材质316L的不锈钢钢材,长度为500mm,踏棍中心间距为300mm等距离分布。
3、不锈钢直梯长度:5.2米,一端不锈钢直梯保留1.1米不焊接踏棍,剩余踏棍间距为300mm等距离分布,最下端的踏棍距基准面距离不宜大于450mm。
4、不锈钢护笼直径应为700mm,水平圈采用50*4不锈钢扁钢间距为450-750mm,在水平圈内侧均布焊接五根同规格扁钢垂直条。护笼长度:3.4m,开口:564mm。
5、不锈钢安全门采用Ф32*4,材质316L的不锈钢钢材;门框内均匀焊接3根不锈钢立管;门高度为900mm,门宽度为490mm。
6、不锈钢门轴采用材质316L的不锈钢钢材制作,规格:Ф14*80。
三、荷载规定:
1、踏棍按在中点承受1KN集中活荷载计算容许挠度不大于踏棍长度的1/250。
2、梯梁按组焊后其上端承受2KN集中活荷载计算高度按支撑间距选取无中间支撑时按两端固定点距离选取容许长细比不宜大于200。
